详细绘图 > 注释绘图 > 清理尺寸和细节显示 > 对齐尺寸
  
对齐尺寸
可通过对齐线性、径向和角度、尺寸来清理绘图显示。选定尺寸与所选定的第一尺寸对齐 (假设它们共享一条平行的尺寸界线)。无法与选定尺寸对齐的任何尺寸都不会移动。
1. 选择要将其它尺寸与之对齐的尺寸。该尺寸即被突出显示显示。
2. 按住 CTRL 键并选择要对齐的剩余尺寸。可单独地选择附加尺寸或使用区域选择。还可以选择未标注尺寸的对象,但是,对齐只适用于选定尺寸。选定的尺寸会突出显示显示。
3. 右键单击,然后从快捷菜单中单击“对齐尺寸”(Align Dimensions),或者在“注释”(Annotate) 选项卡上单击“对齐尺寸”(Align Dimensions)。尺寸与第一个选定尺寸对齐。
 
每个尺寸可独立地移动到一个新位置。如果其中一个尺寸被移动,则已对齐的尺寸不会保持其对齐状态。
还可使用捕捉线对齐尺寸。移动捕捉线会移动与之对齐的所有图元。
选择尺寸的顺序很重要。所选择的第一个尺寸将建立目标引线空间。随后选择的引线将尝试与先前的引线对齐。
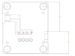
取消对齐的线性尺寸
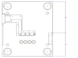
对齐的线性尺寸