详细绘图 > 注释绘图 > 标注模型 > 插入尺寸 > 插入纵坐标尺寸 > 关于纵坐标尺寸
  
关于纵坐标尺寸
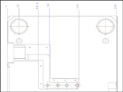
纵坐标尺寸使用不带引线的单一的尺寸界线,并与基线参考关联,在下图中显示为 ".00"。所有参考同一基线的尺寸,必须共享一个公共平面或边。
可使用新起点或现有起点创建纵坐标尺寸。
可使用下列绘图选项的组合控制纵坐标尺寸的显示格式:
ord_dim_standard - 设置标准。例如,std_jis 沿垂直于基准线并且以开放圆开始的连接线放置尺寸。
draw_arrow_style - 控制箭头和圆的样式,无论它们为开放、封闭还是填充形式。
draw_dot_diameter - 设置指引线点 (基线上的圆) 的直径。
四舍五入的纵坐标尺寸的显示与四舍五入的线性尺寸的显示类似。选择纵坐标尺寸基线时,“尺寸”(Dimension) 功能区选项卡中的“四舍五入尺寸”(Round Dimension) 复选框将显示为灰色,并且无法更改此复选框的状态。根据“尺寸”(Dimension) 功能区选项卡中定义的小数位数或 lead_trail_zeros 绘图选项的设置,纵坐标尺寸基线始终显示零值。
 
* 仅在至少选择了一个单个纵坐标尺寸的情况下才可使用“尺寸”(Dimension) 功能区选项卡“显示”(Display) 组下方“显示”(Display) 面板中的“纵坐标样式”(Ordinate Style) 选项。
当向一个现有的纵坐标尺寸或纵坐标尺寸组中添加一个新的纵坐标尺寸时,可以选择现有的基线、基线所联接的图元、现有纵坐标尺寸界线或文本的任何部分作为参考。